0
Hoşgeldiniz

Arzu ettiğiniz gayrımenkulü Emlak-Veritabanımızda bulabilirsiniz:

 

Aradığınız gayrımenkulde olması gereken kriterleri doğrudan bize yollayınız. Aradığınız kriterlere uygun bir gayrımenkul fortföyümüze girdiği zaman sizi derhal bilgilendireceğiz. Lütfen aşağıdaki butona tuşlayarak bize gerekli bilgileri yazınız:

Kontakt - Suchanfrage

Bizimle doğrudan iletişim kurunuz!

E-Mail: info@ekopa.de
Telefon: 0202 8709210
Telefaks: 0202 8709218

Sevinçle sizi bekliyoruz!

Sie sollten Ihren Umzug in Ihr eigenes Haus zu Weihnachten 2013 jetzt schon planen!

Es sind nur noch 2 Häuser frei

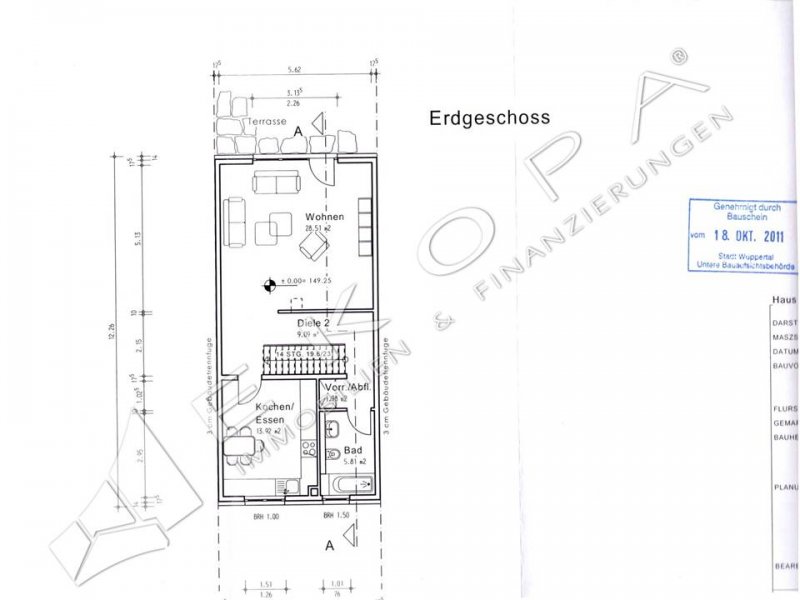
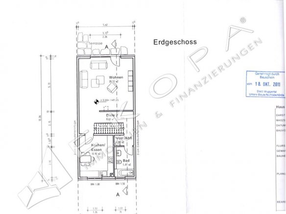
(Zur Vergrößerung klicken Sie bitte auf das jeweilige Bild!)

Baubeschreibung

+ Leistungen

Die Objekte werden die konstruktiven und bauphysikalischen Voraussetzungen
vom KfW 70 Standard erfüllen.

+ Erschließung

Das Grundstück wird über das vorhandene öffentliche Straßennetz, sowie über private Straßenflächen erschlossen.                                                  

a)   Die Kanal-, Strom-, Gas-, Wasser- und Telekommunikationsanschlüsse
      erfolgen jeweils über die örtlichen Versorgungsunternehmen.

b)   Die privaten Straßenflächen erhalten einen 25 – 30 cm starken Unterbau,
      der dann mit wasserdurchlässigem Pflaster beleg wird.

+ Bauweise

Die Einfamilienhäuser werden als Reihenhäuser mit Stellplätzen auf den Baugrundstücken mit Keller gemäß den Plänen in massiver Ausführung erstellt.

+ Erdbauarbeiten

Aushub der Baugrube und seitliche Lagerung des Aushubmaterials bzw. Abfuhr des nicht benötigten Materials. Verfüllung der Arbeitsräume. Zufahrt und Stellplätze werden mit Ökopflaster in betongrau auf Splittbett gepflastert.
Gartenterrassen erhalten einen ca. 18 qm Unterbau, für die von den Enderwerbern zu erbringenden Terrassenbelag.
Die restlichen Gartenflächen werden einplaniert und mit Mutterboden angedeckt.

+ Wände / Innenputz

Alle tragenden Wände werden mit Kalksandstein und Gasbeton im Dünnbettverfahren geklebt. Die Wände erhalten einen maschinell aufgetragenen Gipsputz.
Nichttragende Innenwände werden aus Gasbetonsteinen, alternativ in Ständerwerk, erstellt. Alle Wände werden mit einer tapezierfähigen Oberflächenqualität übergeben, jedoch ohne Acrylarbeiten / Versiegelungen an allen Stoßkanten, und zwar zwischen Decke und Wand, Wand und Wand, Wand und Zarge, sowie Wand und Fenster.

+ Decken/Estrich

Aus Stahlbeton gemäß Statik, in Ortbeton oder Filigranbauweise. Auf Bodenplatte und Geschoßdecken wird schwimmender Zementestrich gemäß Wärme- und Schallschutz-nachweis verlegt. Alle Deckenuntersichten ( ausgen. Keller ) erhalten eine tapezierfähige Oberfläche.

+ Fassade

Vollwärmeschutz mit Dämmplatten gemäß Wärmeschutzverordnung.
Oberflächen– und Farbgestaltung nach Wahl des Bauträgers.

+ Dachflächen

Der Dachstuhl wird in Konstruktionsvollholz gemäß Statik ausgeführt. Lattung und Konterlattung sind aus imprägnierten Materialien. Wärmedämmung aus Mineralwolle gemäß Wärmeschutznachweis. Dacheindeckung mit Betondachsteinen Fabrikat Braas oder gleichwertig, mit Dampfsperre und Unterspannbahn. Farbe nach Wahl des Bauträgers.
Regenrinnen und Fallrohre werden in Zink ausgeführt.

+ Fenster / Türen

Alle Fenster und Terrassentüren mit 3-fach Verglasung gemäß Wärme-schutzverordnung in weißem Kunststoffrahmen. Alle einflügeligen Fenster in Dreh-/ Kippausführung. Die zweiflügeligen werden in Stulp-Konstruktion ausgeführt. Die Terrassenanlage wird als festverglast mit Tür als Dreh-/ Kippbeschlag ausgeführt. Fenster in den Bädern werden mit satinierter Verglasung ausgeführt.
Alle Fenster im UG werden mit Rolladen ausgestattet ( ausgenommen das Licht-schachtfenster ).
Hauseingangstür mit weißer Kunststofffüllung und Dreifachverriegelung.
Innentüren und Zarge weiß beschichtet nach Mustervorlage. Ausführung  mit Röhrenspankern. Drückergarnitur nach Mustervorlage.
Innenfensterbänke aus Granit nach Wahl des Bauträgers.
Außenfensterbänke aus Aluminium in EV 1 Ausführung.

+ Fliesenarbeiten

Im Bad werden der Boden als auch die Wände ( 2 m hoch ) nach Mustervorlage gefliest.
Im Gäste – WC wird der Boden gefliest. Die Installationswände werden 1,20m hoch gefliest, ebenso wird der Boden der Diele im UG gefliest.

+ Malerarbeiten und Bodenbeläge

Tapezier- und Anstricharbeiten einschl. Acrylarbeiten sind nicht im Kaufpreis enthalten, und vom Käufer in Eigenleistung zu erbringen.
Bad, Gäste-WC und Eingangsdiele werden gefliest, restliche Oberböden ohne Belag und in Eigenleistung vom Käufer zu erbringen.

+ Metall- und Schlosserarbeiten

Zweiholm-Stahltreppenkonstruktion, Trittstufen in Buche massiv, bunt keilgezinkt, Segmentgeländer-Rahmen und Füllung aus Rechteckrohr mit Holzhandlauf. Stahlkonstruktion und Stahlgeländer sind streichfertig vorbereitet.
Endanstrich ist vom Käufer in Eigenleistung zu erbringen. Der Treppenlauf vom UG zum EG kann wahlweise als Betonfertigteil eingebaut werden.

+ Heizung- und Warmwasser

Wärmeerzeuger: Stiebel Eltron Wärmepumpe ACS inkl. mit Pufferspeicher und Warmwasserspeicher mit witterungsabhängiger Regelung.
Wärmeverteilung: über Fußbodenheizung mit Raumthermostaten.

+ Sanitär

Bad mit Wanne 75x170 cm aus emailliertem Stahl oder Acryl in weiß, Fabrikat Bamberger oder gleichwertig. Waschtisch 65 cm, Hänge-WC beide Fabrikat Ideal Standard oder gleichwertig in weiß, inkl. Einhebelmischer und Wannenfüllarmatur Fabrikat Eurosmart von der Fa. Grohe.
Gäste-WC mit Waschtisch 40 cm und Hänge-WC beide Fabrikat Ideal Standard.
Warmwasseranschluss in Bad und Küche. Kaltwasseranschluss für Gäste-WC, Waschmaschine und Garten-Außenzapfstelle.
Alle Ver– und Entsorgungsleitungen sowie Anschlüsse nach den technischen Erfordernissen.

+ Elektroarbeiten

Die Installation erfolgt nach den VDE-Richtlinien.
Das Schalterprogramm ist weiß von der Fa. Gira.
HA-Raum: Schalter/Steckdose und 1 Deckenauslass.
Keller: 2 Steckdosen auf Putz und 1 Deckenauslaß, separate Zuleitungen für Waschmaschine und Trockner.
Gästezimmer: 4 Steckdosen, 1 Antennenanschluss, 1 Deckenauslass.
Diele 1: Kreuzschaltung mit 1 Steckdose, 1 Wand- u. Deckenauslass.
Diele 2: Wechselschaltung mit 1 Steckdose und 1 Deckenauslass.
Wohnzimmer: 6 Steckdosen, 1 Deckenauslass, 1 Antennenanschluss und 1 Ausschaltung mit Wandanschluss und Steckdose im Aussenbereich.
Küche: 1 Deckenauslass, 9 Steckdosen, sep. Zuleitung mit Anschlussdose für den Herd u. Backofen, sep. Zuleitung für die Spülmaschine mit Steckdose und einer sep. Zuleitung Kühleinheiten.
Bad u. Gäste-WC: 1 Steckdose, 1 Wand- u. Deckenauslass.
Diele 3: Wechselschaltung, 1 Steckdose, 1 Deckenauslass.
Schlafen: 5 Steckdosen, 1 Antennenanschluss, 1 Deckenauslass.
Kind 1 u. 2: 4 Steckdosen, 1 Antennenanschluss, 1 Deckenauslass.
1 Klingeleinheit mit Taster und Gong.         

Stand:12.12.2012

Seitenanfang